SF-2-781-358

Продам 2-кімнатну квартиру, ЖК Manhattan

Розташування: Одеса, Хаджибейський район, Черемхи, Філатова Академіка вул., 2
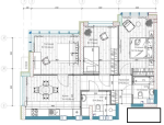
2 Кімнат
70 м2
17/22 поверх
Ціна
95 000 $

Інформація

Продам 2-х комн квартиру с ремонтом и мебелью ЖК " "Манхэттен Манхеттен Manhattan"!
ВИДНО МОРЕ
Толбухина / Филатова! Новый дом.
Квартира на 17-м этаже.
Встроенная кухня, варочная поверхность, вытяжка, холодильник, духовка, угловой диван, большая кровать. Теплый пол, панорамные окна на парк и море, южная сторона.

В доме установлены лифты евроформат, паркинг, много зелени. Двор закрытого типа. Автономное отопление.
Рядом расположены магазины, Сильпо, школы, больница Инто Сана, гипермаркет Мега Дом, парк Горького. Таврия В; Новая Почта (отделение 90); парк им. Горького, больница; школа 51 .
К морю 15 минут на авто.
Рядом популярные улицы: Люстдорфская дорога, Варненская, Космонавтов, Героев Крут, Ромашковая, Жаботинского, Толбухина, Глинки.
Звоните! Организую показ в удобное время!

Узнайте первыми о самых выгодных предложениях недвижимости в Одессе!
Подпишитесь или позвоните на телеграмм
Domus - нерухомість Одеси

95 000 $ вартість об'єкта
1 357 $ ціна за м2
70 м2
2 кімнат
17 Поверх
22 К-ть поверхів

Параметри

центральна Вода:
центральне Опалення:

Додатково

Дата оновлення інформації: 22.05.2025 17:36;