SF-2-811-077

Продам 1-кімнатну квартиру, ЖК «Вернісаж»

Розташування: Одеса, Київський район, Таїрова, Корольова Академіка вул., 50А
1 Кімнат
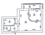
52 м2
17/17 поверх
Ціна
42 000 $

Інформація

Квартира с ремонтом, мебелью и техникой в ЖК "Вернисаж" на Таирова!
Расположена на 17-м этаже.
Вид моря, охраняемый закрытый двор.
Развитая инфраструктура является важным преимуществом данного района. К вашим услугам здесь предложены кафе, рестораны, аптеки, магазины, фитнес-центры и многое другое. Медицинские учреждения также расположены неподалеку от комплекса. А удобное транспортное сообщение всегда позволит вам доехать в необходимую точку города.

42 000 $ вартість об'єкта
808 $ ціна за м2
52 м2
1 кімнат
17 Поверх
17 К-ть поверхів

Параметри

центральна Вода:
центральне Опалення:

Додатково

Дата оновлення інформації: 15.11.2024 11:30;