SF-2-815-856

Продам 2-кімнатну квартиру, ЖК «Real Park»

Розташування: Одеса, Хаджибейський район, Аеропорт, Овідіопольська Дорога, 3
2 Кімнат
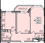
65 м2
10/16 поверх
Ціна
51 000 $

Інформація

Снижена цена! 2-х комн квартира ЖК "Реал Парк" в сданном доме!
Квартира на 10-м этаже.
Есть балкон.
Секция 1.3.
В каждой секции установлены два лифта – пассажирский и грузовой.
Высокий коэффициент теплосбережения (наружные стены выполнены из керамического блока).
Дубовая роща для прогулок.
Хорошая транспортная развязка.
Круглосуточная охрана и видеонаблюдения.
Благоустроенные дворы с детскими и спортивными площадками.
Собственная управляющая компания.
Звоните!
Узнайте первыми о самых выгодных предложениях недвижимости в Одессе!
Подпишитесь на наш телеграм
Domus - нерухомість Одеси

51 000 $ вартість об'єкта
785 $ ціна за м2
65 м2
2 кімнат
10 Поверх
16 К-ть поверхів

Параметри

центральна Вода:
центральне Опалення:

Додатково

Дата оновлення інформації: 30.08.2025 17:26;