SF-2-848-238

Продам 1-кімнатну квартиру, ЖК «Простір на Донського»

Розташування: Одеса, Київський район, Великий Фонтан, Дмитріївська вул., 59
1 Кімнат
23 м2
5/7 поверх
Ціна
21 900 $

Інформація

Продам 1 комн ЖК "Пространство На Донского", Люстдорфская дорога!

Смарт-апартаменты. Дом сдан. Комплекс расположен по адресу: улица Дмитрия Донского, 59. Рядом ул. Дмитриевская и Люстдорфская дорога.
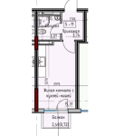
5 этаж.
Общая площадь: 23.14 м2.
Кухня- студия: 15.3 м2.
Квартира под ремонт.
В доме консьерж-сервис, охрана 24/7, зеленая зона занимает 70% от всей площади двора; наличие детского сада, спортзала и др. на территории ЖК.
Звоните! Организую показ!

Узнайте первыми о самых выгодных предложениях недвижимости в Одессе!
Подпишитесь или позвоните на телеграмм
Domus - нерухомість Одеси

21 900 $ вартість об'єкта
946 $ ціна за м2
23.14 м2
1 кімнат
5 Поверх
7 К-ть поверхів

Параметри

центральна Вода:
центральне Опалення:

Додатково

Дата оновлення інформації: 11.11.2024 12:45;