SF-2-851-905

Продам 2-кімнатну квартиру, ЖК «Modern»

Розташування: Одеса, Київський район, Чубаївка, Франка І. вул., 40
2 Кімнат
79 м2
15/23 поверх
Ціна
77 000 $

Інформація

Акция! Цена снижена! 2 комн квартира. ЖК Модерн/Modern
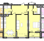
Общая площадь: 79,3 м2.
Кухня: 19,15 м2.
Бизнес-класс.
Закрытая охраняемая территория.
Паркинг.
Автономный генератор.

Уникальная эстетика, оригинальный фасад
Лучшая локация на 6-й станции Фонтана
Ландшафтный дизайн территории
Дизайнерский холл и общественные зоны
Многоуровневая система безопасности
Консьерж-сервис
Двор без машин
Развита инфраструктура, включающая в себя супермаркеты, аптеки, салоны красоты, больницу, остановки городского транспорта.
До Аркадии пешком 20 минут, до парка – 15 минут.

Комплекс расположен по адресу: улица Ивана Франко, 40.

77 000 $ вартість об'єкта
971 $ ціна за м2
79.30 м2
2 кімнат
15 Поверх
23 К-ть поверхів

Параметри

центральна Вода:
центральне Опалення:

Додатково

Дата оновлення інформації: 13.12.2024 11:49;