SF-2-863-531

Продам 2-кімнатну квартиру, ЖК «Простір на Літературній»

Розташування: Одеса, Київський район, Середній Фонтан, Фонтанська Дорога, 71А
2 Кімнат
63 м2
5/8 поверх
Ціна
79 743 $

Інформація

Продам 2 комн ЖК "Пространство на Литературной" с балконом

5 этаж.
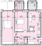
Общая площадь: 62.71 м2.
Кухня: 25 м2.

Состояние от строителей.
Два балкона.
Северо-восточная.
В 8 минутах ходьбы раскинулся парк Юность с детскими и спортивными площадками, а чтобы спуститься оттуда к пляжу понадобится еще 8 минут.
До центра города по Фонтанской дороге можно добраться за 17 минут на авто.
Вся территория закрыта от посторонних и авто, для которых есть место на подземном паркинге.
Охрана с видеонаблюдением и консьерж-сервис, поэтому можно спокойно расслабиться и насладиться свободным временем. Взрослые могут это сделать в литературном кафе, лаунж-пространстве или спортивной зоне. А дети точно облюбуют домик на дереве или детский огород.

79 743 $ вартість об'єкта
1 272 $ ціна за м2
62.71 м2
2 кімнат
5 Поверх
8 К-ть поверхів

Параметри

центральна Вода:
центральне Опалення:

Додатково

Дата оновлення інформації: 22.10.2025 16:34;