SF-2-869-194

Продам 2-кімнатну квартиру, ЖК «Простір на Літературній»

Розташування: Одеса, Київський район, Середній Фонтан, Фонтанська Дорога, 71А
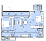
2 Кімнат
66 м2
7/8 поверх
Ціна
87 958 $

Інформація

Продам 2 комн ЖК "Пространство на Литературной", восточная! Балкон

7 этаж.
Общая площадь: 65.64 м2.
Кухня: 25 м2.

Окна на фасад.
Квартира с балконом.
Восточная.
Состояние от строителей.
В 8 минутах ходьбы парк Юность с детскими и спортивными площадками, а чтобы спуститься оттуда к пляжу понадобится еще 8 минут.
До центра города по Фонтанской дороге можно добраться за 17 минут на авто.
Вся территория закрыта от посторонних и авто, для которых есть место на подземном паркинге.
Охрана с видеонаблюдением и консьерж-сервис, поэтому можно спокойно расслабиться и насладиться свободным временем. Взрослые могут это сделать в литературном кафе, лаунж-пространстве или спортивной зоне.
А дети точно облюбуют домик на дереве или детский огород.

87 958 $ вартість об'єкта
1 340 $ ціна за м2
65.64 м2
2 кімнат
7 Поверх
8 К-ть поверхів

Параметри

центральна Вода:
центральне Опалення:

Додатково

Дата оновлення інформації: 22.10.2025 16:36;