SF-2-874-198

Продам 1-кімнатну квартиру, ЖК «Акварель 2»

Розташування: Лиманка, Одеська область, Одеський район, Перлинна вул., 3А
1 Кімнат
37 м2
17/19 поверх
Ціна
30 000 $

Інформація

Продам 1 комнатную квартиру ЖК Акварель 2, Таирова! Архитекторская.

Этаж 17/19
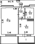
Площадь: 36,8 м2
Кухня: 8,5 м
Переуступка
Окна во двор в сторону заката.
Квартира светлая.
На полу уже есть стяжка.
Добротная входная дверь "САГАН".
Так же есть в продаже Кладовка 3м - 1 800$.
Есть Генератор на дом. Консьерж, охрана. Красивый дворы, ухоженная территория.

Отличный район с развитой инфраструктурой.!! Рядом много супермаркетов: Копейка, Сильпо, АТБ, центр для детей, оптовый рынок, Метро, Эпицентр.
Рядом с комплексом расположены популярные улицы: Ильфа и Петрова, Академика Вильямса, Архитекторская, Строителей, проспект Небесной Сотни.
Звоните!

Узнайте первыми о самых выгодных предложениях недвижимости в Одессе!
Подпишитесь или позвоните на телеграмм
Domus - нерухомість Одеси

30 000 $ вартість об'єкта
815 $ ціна за м2
36.80 м2
1 кімнат
17 Поверх
19 К-ть поверхів

Параметри

центральна Вода:
центральне Опалення:

Додатково

Дата оновлення інформації: 21.03.2025 17:20;