SF-2-908-727

Продам 1-кімнатну квартиру, ЖК Прохоровський квартал

Розташування: Одеса, Хаджибейський район, Молдаванка, Прохоровська вул., 40
1 Кімнат
52 м2
14/16 поверх
Ціна
42 100 $

Інформація

Продам квартиру в центре ЖК Прохоровский квартал дом сдан
Квартира от строителей. Фото это визуализация дизайна проекта.

Квартира светлая и удобная.
Окна выходят на две стороны дома.
Спальня выходит на юго-восток. Окно спальни не упирается в корпус напротив, а промежуток между корпусами.
Окно кухни выходит на закат.

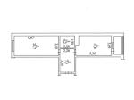
Сделан дизайн-проект квартиры. В квартире можно сделать полноценную спальню и дополнительное спальное место в зоне отдыха на кухне. Также в проекте большая удобная гардеробная.

42 100 $ вартість об'єкта
810 $ ціна за м2
52 м2
1 кімнат
14 Поверх
16 К-ть поверхів

Параметри

центральна Вода:
центральне Опалення:

Додатково

Дата оновлення інформації: 10.11.2025 12:28;