SF-2-967-143

Продам 1-кімнатну квартиру, ЖК «Альтаїр 2»

Розташування: Одеса, Київський район, Таїрова, Люстдорфська дорога, 90
1 Кімнат
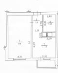
43 м2
14/25 поверх
Ціна
51 000 $

Інформація

Продам 1 комн квартиру 42.8 кв. м, в ЖК "Альтаир 2", ул. Люстдорфская дорога 90.
Качественный ремонт делался для себя. В аренду не сдавалась.
Шумоизоляция, теплый пол в санузле, индивидуальный счетчик на отопление, квартира очень теплая и солнечная, но не жаркая (солнце до обеда). Из окон видно море. Закрыта территория комплекса, большой двор без автомобилей, подземный паркинг с укрытием. Генератор работает всё время без электричества.
Удобное расположение, отличная транспортная развязка. Парк Горького в 10 минутах ходьбы. Рядом гимназия 33.
Рядом расположены улицы: Космонавта Комарова, Проектная, Рассвета, 1-й Аэродромный переулок, Жаботинского.
Звоните! Организую показ в удобное время!

Узнайте первыми о самых выгодных предложениях недвижимости в Одессе!
Подпишитесь на наш Telegram-канал
Domus - нерухомість Одеси

51 000 $ вартість об'єкта
1 192 $ ціна за м2
42.80 м2
1 кімнат
14 Поверх
25 К-ть поверхів

Параметри

центральна Вода:
центральне Опалення:
моноліто-каркас Матеріал стін:

Додатково

Дата оновлення інформації: 20.12.2024 14:53;