SF-3-031-706

Продам 1-кімнатну квартиру, ЖК «Акварель 7»

Розташування: Одеса, Пересипський район, Слобідка, Слобідська вул., 56
1 Кімнат
35 м2
2/5 поверх
Ціна
31 000 $

Інформація

Продам 1 комн квартиру ЖК Акварель 7, Слободка. Дом сдан!

ЖК Акварель 7 - расположен по ул. Слободская, 56.
Квартира расположена на 2-м этаже.
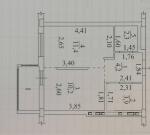
Площадь квартиры: 35 м2
Квартира под ремонт.
Самостоятельная полноценная однокомнатная квартира, кухня 10 м2 с выходом на балкон, спальня 11.5 м2, ванная комната и гардеробная.
Панорамные окна.

Дорога до центра города занимает 10 минут на машине.

В доме система охраны с камерами видеонаблюдения. Придомовая территория - закрытый внутренний двор с современной детской и спортивной площадками, а также озелененными зонами отдыха. Магазины на 1 этажах дома.
Рядом: Академика Воробьева ул., Краснослободская.
Звоните! Организую показ!

Узнайте первыми о самых выгодных предложениях недвижимости в Одессе!
Подпишитесь на наш Telegram-канал
Domus - нерухомість Одеси

31 000 $ вартість об'єкта
886 $ ціна за м2
35 м2
1 кімнат
2 Поверх
5 К-ть поверхів

Параметри

центральна Вода:
центральне Опалення:
газоблок Матеріал стін:

Додатково

Дата оновлення інформації: 29.09.2025 17:40;