SF-3-072-447

Продам 3-кімнатну квартиру, ЖК «Таїровські сади»

Розташування: Лиманка, Одеська область, Одеський район, Вільямса вул., 93/1
3 Кімнат
107 м2
21/23 поверх
Ціна
86 500 $

Інформація

Продам 3х комнатную квартиру в новом ЖК Таировские Сады!
площадь - 107 кв м на 21м этаже + паркоместо под секцией.

ЖК Таировские Сады 1ПК, 6 секция.
Дом сдан. 2 кладовки на этаже.

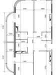
Квартира правильной формы с 3мя балконами, гардеробной и 2мя санузлами.

Есть возможность переделать планировку под собственный проект (Несущие стены только наружные).

Квартира светлая и очень теплая, окна выходят на 3 стороны - восток, юг и запад. С окон открывается панорамный вид на море и Киевский район!

В доме подземный паркинг, работает генератор - если отключают свет. Красивые зоны отдыха. Тихий и спокойный район, рядом магазины, остановки общественного транспорта, школы и детские сады.
Вблизи расположены улицы: Жемчужная, Академика Вильямса, Архитекторская, Ильфа и Петрова, Академика Глушко.
Звоните для уточнения деталей!

Узнайте первыми о самых выгодных предложениях недвижимости в Одессе!
Подпишитесь или позвоните на телеграмм
Domus - нерухомість Одеси

86 500 $ вартість об'єкта
808 $ ціна за м2
107 м2
3 кімнат
21 Поверх
23 К-ть поверхів

Параметри

центральна Вода:
центральне Опалення:

Додатково

Дата оновлення інформації: 26.10.2025 19:07;