SF-3-078-943

Продам 1-кімнатну квартиру, ЖК «Атмосфера»

Розташування: Одеса, Приморський район, Аркадія, Курортний пров., 2
1 Кімнат
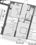
49 м2
4/25 поверх
Ціна
56 100 $

Інформація

Евро 2 комн 50м2 в ЖК Атмосфера! Самая встребованная планировка!
Аркадия, Генуэзская, Курортный переулок
Квартира на комфортном 4 этаже, есть лоджия на всю квартиру, окна в благоустроенный красивый двор.
-дом в 5 минутах от моря
-бассейн на территории
-2-х уровневый подземный паркинг
-лаунж-зоны на террасах и во дворе
- детский центр, фитнесс-клуб, СПА, салон красоты, кафе, кондитерская, отделение почты, банка, аптека, химчистка, коворкинг.
В пешей доступности парк Победы, Аркадия, Трасса Здоровья.
Рядом улицы: Академическая, Черняховского, Тенистая, Французский бульвар, Курортный переулок, Гагаринское плато.
Звоните!

Узнайте первыми о самых выгодных предложениях недвижимости в Одессе!
Подпишитесь или позвоните на телеграмм
Domus - нерухомість Одеси

56 100 $ вартість об'єкта
1 140 $ ціна за м2
49.22 м2
1 кімнат
4 Поверх
25 К-ть поверхів

Параметри

центральна Вода:
центральне Опалення:

Додатково

Дата оновлення інформації: 08.05.2025 16:16;