SF-3-111-826

Продам 2-кімнатну квартиру, ЖК «Шістдесят шоста перлина»

Розташування: Одеса, Хаджибейський район, Іподром, Краснова вул.
2 Кімнат
65 м2
7/24 поверх
Ціна
67 500 $

Інформація

В продаже просторная 2к квартира с самом инновационном комплексе в Одессе.
ЖК 66 Жемчужина, Краснова, Кадорр Сити!
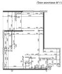
Квартира общей площадью 64,5м2 расположена на 7 этаже, в квартире уже выполнена перепланировка, увеличена кухня.
Окна смотрят на Ипподром и благоустроенный красивый двор.
Раздельная планировка. От строителей, под ремонт. Чистовая отделка стен. Балкон. Установлены бронированная дверь, окна энергосберегающие, радиаторы, ввод всех коммуникаций.
Красивые парадные, автономные лифты. Подземный паркинг.
Обжитая инфраструктура. Рядом все необходимое (аптеки, магазины, остановки общественного транспорта, рынки и т.д).
Показ в любое время! Быстрое оформление сделки!
Скоро сдача дома. Строительство на завершающем этапе!
Переуступка! Звоните!

Узнайте первыми о самых выгодных предложениях недвижимости в Одессе!
Подпишитесь или позвоните на телеграмм
Domus - нерухомість Одеси

67 500 $ вартість об'єкта
1 047 $ ціна за м2
64.50 м2
2 кімнат
7 Поверх
24 К-ть поверхів

Параметри

центральна Вода:
центральне Опалення:

Додатково

Дата оновлення інформації: 09.06.2025 11:17;