SF-3-146-419

Продам готельку

Розташування: Одеса, Приморський район, Залізничний вокзал, Педагогічна вул.
1 Кімнат
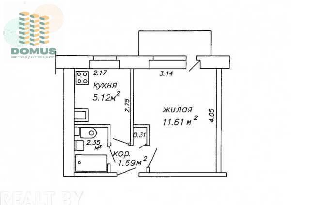
22 м2
5/9 поверх
Ціна
27 000 $

Інформація

В продаже 1 ком. квартира гостиничного типа этаж 5, 9-ти этажного дома. Район 7 станции Фонтанской дороги по ул.Педагогическая/Клубничный пер. кирпичный дом, Бронированная дверь, на полу качественный ламинат, натяжные потолки, новый бойлер на 80 литров,новая стиральная машина, новый холодильник, микроволновая печь, кондиционер, проведён оптоволоконный кабель для интернета, в с/у большая плитка, большой балкон застеклен, чистое жилое состояние.

Интересное предложение для проживания или для сдачи в аренду.
Море в пешей доступности.
В квартире остается вся мебель и техника как видно на фото.
Пешком к Аркадии по аллее к морю 13 мин.

Узнайте первыми о самых выгодных предложениях недвижимости в Одессе!
Подпишитесь или позвоните на телеграмм
Domus - нерухомість Одеси

27 000 $ вартість об'єкта
1 227 $ ціна за м2
22 м2
1 кімнат
5 Поверх
9 К-ть поверхів

Параметри

центральна Вода:
центральне Опалення:
цегла Матеріал стін:

Додатково

Дата оновлення інформації: 04.06.2025 12:15;