SF-3-182-138

Продам 2-кімнатну квартиру, ЖК «Посейдон»

Розташування: Одеса, Київський район, ЖМ Дружний, Дача Ковалевського вул.
2 Кімнат
60 м2
15/24 поверх
Ціна
55 000 $

Інформація

Продам 2 комн квартиру, Фонтан, пляж Золотой Берег в ЖК Посейдон! Киевский район.
Фонтанская дорога
15 этаж
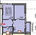
Общая площадь: 60 м2
Кухня — 16 м² с выходом на балкон
Санузел смежный
Отопление — собственная котельная
Квартира под ремонт. Близко море.
Придомовая зона ограждена, хорошо освещена и находится под видеонаблюдением и охраной круглые сутки.
Большая детская площадка и живописные зоны отдыха со скамейками, цветочными клумбами и фонтаном.
Для автомобилистов предусмотрен трехуровневый подземный паркинг.
В пешей доступности от ЖК «Посейдон» расположены государственная школа и детский сад, а также несколько частных детских садов и школ.
В 100 метрах круглосуточно работает супермаркет «Копейка».
Идеальное жильё для жизни или отдыха:
— в 2 минутах от пляжа
— ухоженная набережная для прогулок
— современный жилой комплекс с высоким уровнем сервиса и безопасности.
Звоните!

Узнайте первыми о самых выгодных предложениях недвижимости в Одессе!
Подпишитесь или позвоните на телеграмм
Domus - нерухомість Одеси

55 000 $ вартість об'єкта
917 $ ціна за м2
60 м2
2 кімнат
15 Поверх
24 К-ть поверхів

Параметри

центральна Вода:
центральне Опалення:
моноліто-каркас Матеріал стін:

Додатково

Дата оновлення інформації: 19.08.2025 18:21;