SF-3-194-830

Продам 1-кімнатну квартиру, ЖК «Простір на Донського»

Розташування: Одеса, Київський район, Великий Фонтан, Дмитріївська вул.
1 Кімнат
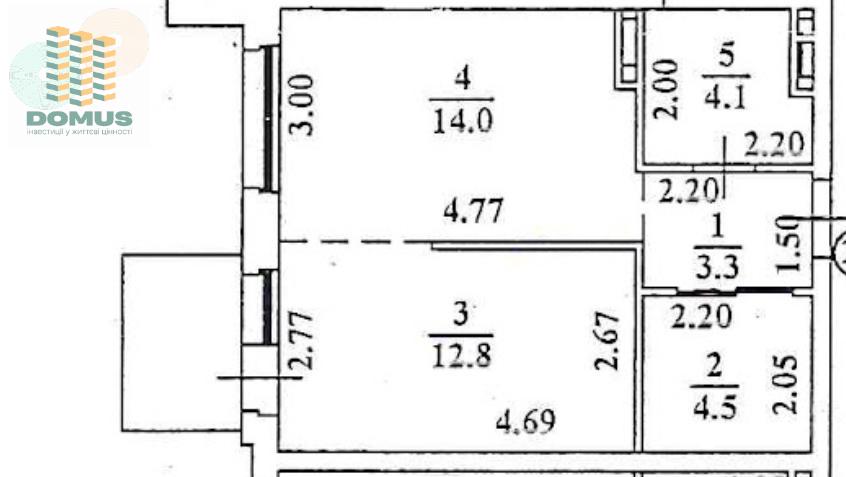
40 м2
4/7 поверх
Ціна
44 500 $

Інформація

Продам 1 комн Таирова в ЖК Пространство на Донского! Сданный дом!
ул. Дмитрия Донского!
4 этаж
Общая площадь: 39,7 м2
Квартира правильной планировки. Терраса.
Двор без машин в соответствии с концепт-проектом. Территория ограждена капитальным забором.
70% территории занимает зеленая зона.
Свой детский сад на территории, игровые площадки, концепция развития коммерции с учетом направления “для детей”, закрытая территория без машин, повышенная система безопасности (чиповая система), футбольное поле, школа детского развития (отдельно стоящее здание).
Звоните! Организую показ!
Узнайте первыми о самых выгодных предложениях недвижимости в Одессе!
Подпишитесь или позвоните на телеграмм
Domus - нерухомість Одеси

44 500 $ вартість об'єкта
1 121 $ ціна за м2
39.70 м2
1 кімнат
4 Поверх
7 К-ть поверхів

Параметри

центральна Вода:
центральне Опалення:

Додатково

Дата оновлення інформації: 25.08.2025 18:25;