SF-3-195-756

Продам 1-кімнатну квартиру, ЖК «Простір на Дачній»

Розташування: Одеса, Київський район, Великий Фонтан, Дачна вул.
1 Кімнат
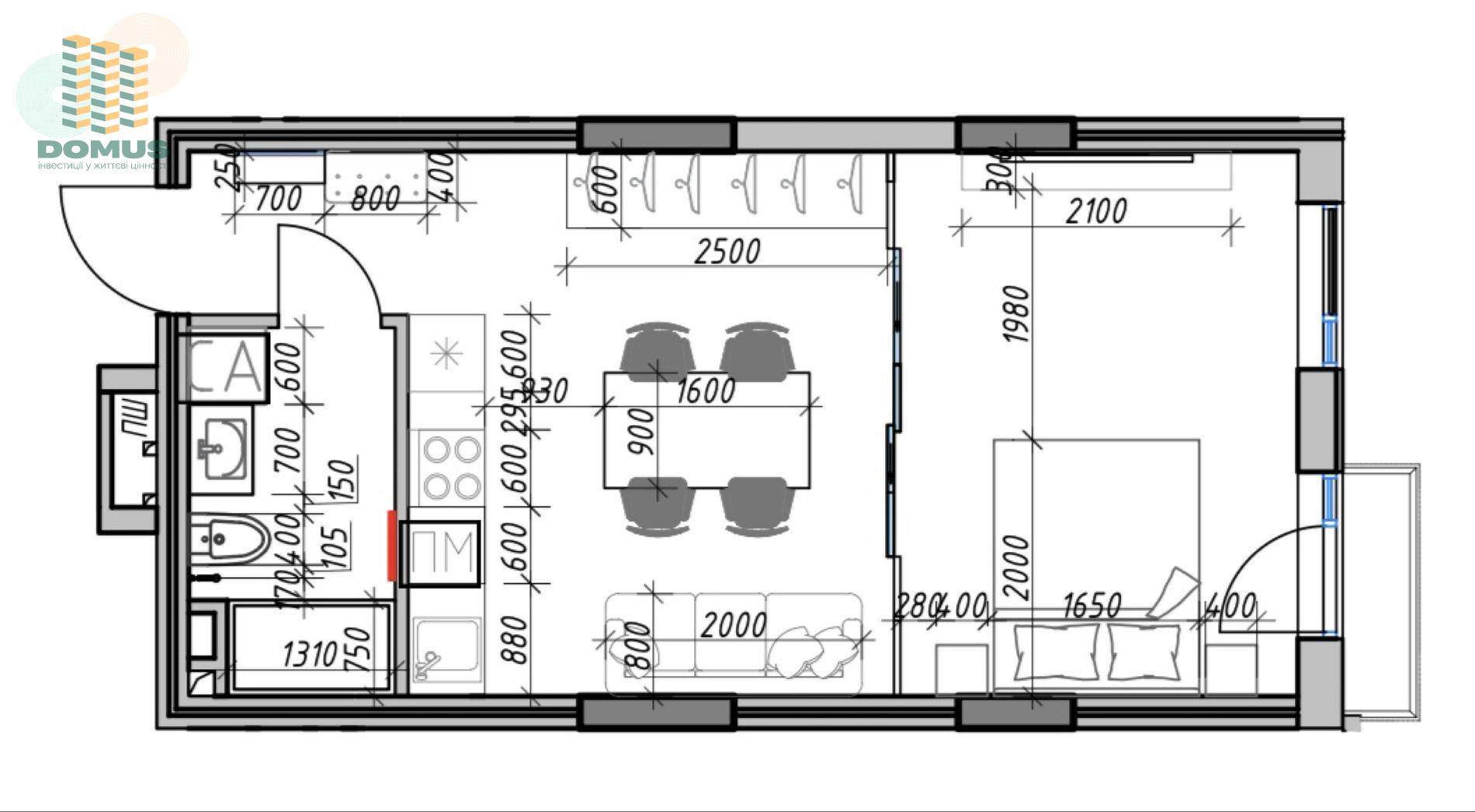
38 м2
2/6 поверх
Ціна
68 000 $

Інформація

Продам 1 комн в ЖК Пространство на Дачной. Сданный дом! ул. Дачная 28/1.
Площадь - 38 метров, уже сделана штукатурка, сантехника и электрика. Проведен кондиционер и стелят плитку, останется поклеить обои потолки и живите или сдавайте.
Есть паркинг с лифтом.
Море в пешей доступности.
Всё необходимое для полноценной жизни находится на расстоянии 5-10 минут ходьбы.
Это и зеленая зона 13ой станции Большого Фонтана, и пляж Курортный, а также детский сад и школа.
Рядом с домом остановка общественного транспорта.

Узнайте первыми о самых выгодных предложениях недвижимости в Одессе!
Подпишитесь или позвоните на телеграмм
Domus - нерухомість Одеси

68 000 $ вартість об'єкта
1 789 $ ціна за м2
38 м2
1 кімнат
2 Поверх
6 К-ть поверхів

Параметри

центральна Вода:
центральне Опалення:
моноліто-каркас Матеріал стін:

Додатково

Дата оновлення інформації: 29.10.2025 17:24;