SF-3-206-998

Продам 1-кімнатну квартиру, ЖК Одеські традиції на Глушко

Розташування: Одеса, Київський район, Ринок Південний, Князя Ярослава Мудрого пр.
1 Кімнат
35 м2
3/17 поверх
Ціна
47 000 $

Інформація

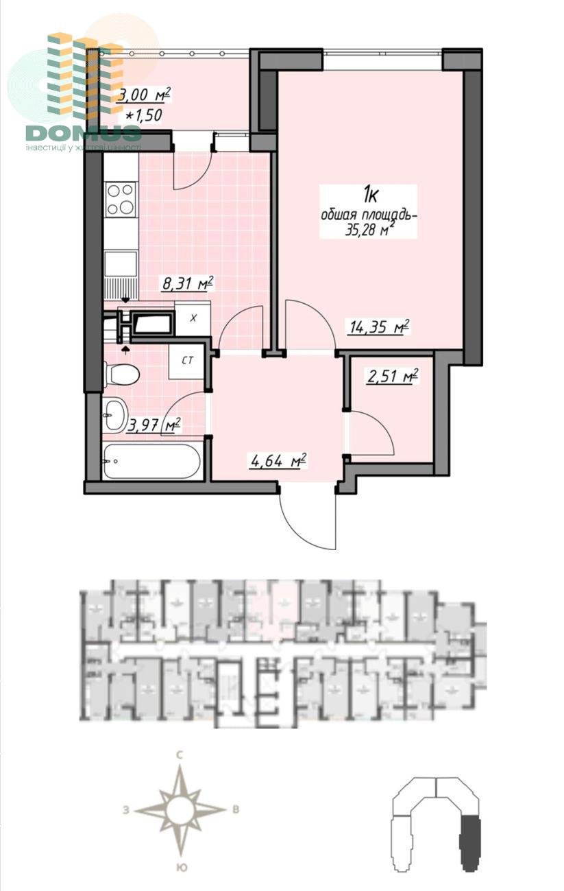
Продам 1 комн с ремонтом в ЖК Одесские Традиции!
3 этаж
Общая площадь: 35,2 м2
Металопластиковые окна, входные и межкомнатные двери, сантехника, электрика.
Окна выходят на прогулочную и зеленую зону, восточная сторона. Не будет жарко в солнечные дни.
Что является приемуществом. В квартире есть гардеробная из прихожей.
Такая планировка одна из всех квартир на этаже что является преимуществом. В доме подземный паркинг, автостоянка, консьерж, охрана. Также 2 лифта грузовой и пассажирский.
Узнайте первыми о самых выгодных предложениях недвижимости в Одессе!
Подпишитесь или позвоните на телеграмм
Domus - нерухомість Одеси

47 000 $ вартість об'єкта
1 332 $ ціна за м2
35.28 м2
1 кімнат
3 Поверх
17 К-ть поверхів

Параметри

центральна Вода:
центральне Опалення:
газоблок Матеріал стін:

Додатково

Дата оновлення інформації: 26.09.2025 16:15;