SF-3-234-239

Продам 1-кімнатну квартиру, ЖК «Шістдесят шоста перлина»

Розташування: Одеса, Хаджибейський район, Іподром, Краснова вул.
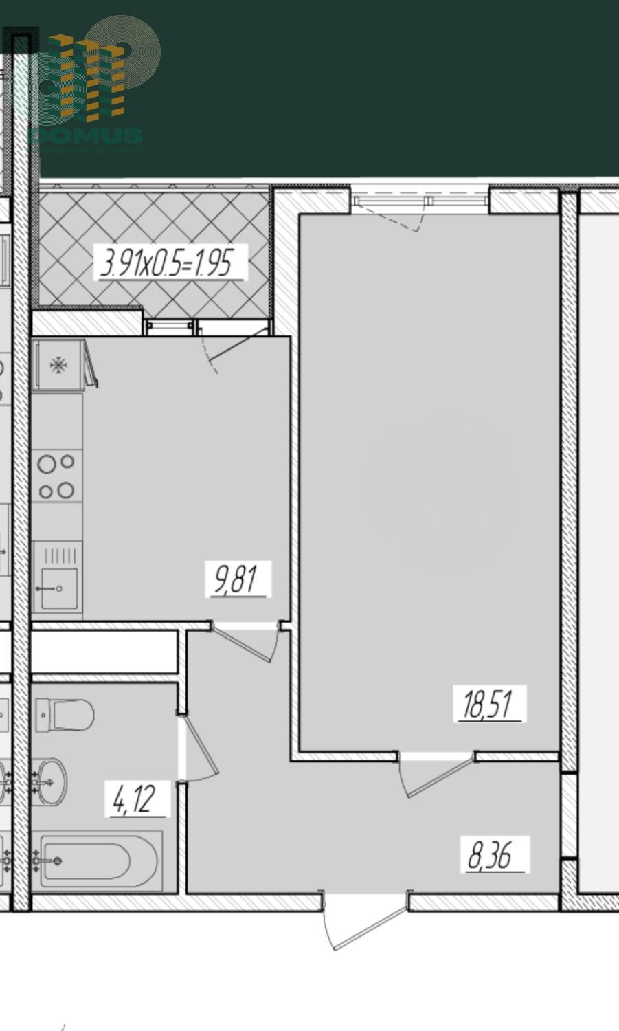
1 Кімнат
42 м2
9/24 поверх
Ціна
47 300 $
47 300 $ вартість об'єкта
1 118 $ ціна за м2
42.30 м2
1 кімнат
9 Поверх
24 К-ть поверхів

Параметри

центральна Вода:
центральне Опалення:

Додатково

Дата оновлення інформації: 02.11.2025 19:59;