SF-3-234-423

Продам 1-кімнатну квартиру, ЖК «Таїровські сади»

Розташування: Лиманка, Одеська область, Одеський район, Вільямса вул.
1 Кімнат
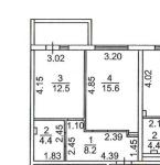
46 м2
4/17 поверх
Ціна
56 000 $

Інформація

Продам 1 комнатную квартиру в ЖК "Таировские Сады", ул. Вильямса 93/1.
Квартира с евроремонтом, расположена на 4 этаже 17-эт.дома, общей площадью 45,6 кв.м с видом в красивый, зеленый двор.
Кухня с обеденной зоной,холодильник, варочная поверхность, духовка, электрочайник, встроенная техника Gorenje.. Отдельно спальня с 2-х спальной кроватью, вместительная гардеробная. Санузел с душ. кабиной, стир. машина. Панорамное остекление, вид на двор.
В прихожей подсобка-гардеробная.
Дом расположен на закрытой и охраняемой территории, полная автономия, собственная котельная, консьерж, детская площадка.
Отличная инфраструктура. Рядом магазин, стоянка, спортзал, остановка транспорта, Эпицентр, Метро,
Полностью обставлена мебелью и техникой.
Узнайте первыми о самых выгодных предложениях недвижимости в Одессе!

Подпишитесь или звоните на телеграмм
Domus - нерухомість Одеси

56 000 $ вартість об'єкта
1 228 $ ціна за м2
45.60 м2
1 кімнат
4 Поверх
17 К-ть поверхів

Параметри

центральна Вода:
автономне Опалення:
моноліто-каркас Матеріал стін:

Додатково

Дата оновлення інформації: 03.11.2025 11:28;