SF-2-853-569

Продам 3-кімнатну квартиру, ЖК «Олімпійский»

Розташування: Одеса, Приморський район, Малий фонтан, Шевченка пр., 29/1
3 Кімнат
122 м2
10/30 поверх
Ціна
140 000 $

Інформація

Продам 3 комн квартиру ЖК "Олимпийский" пр-т Шевченко. Приморский район. Стикон!
Французский бульвар. Вид на море!
10 этаж.
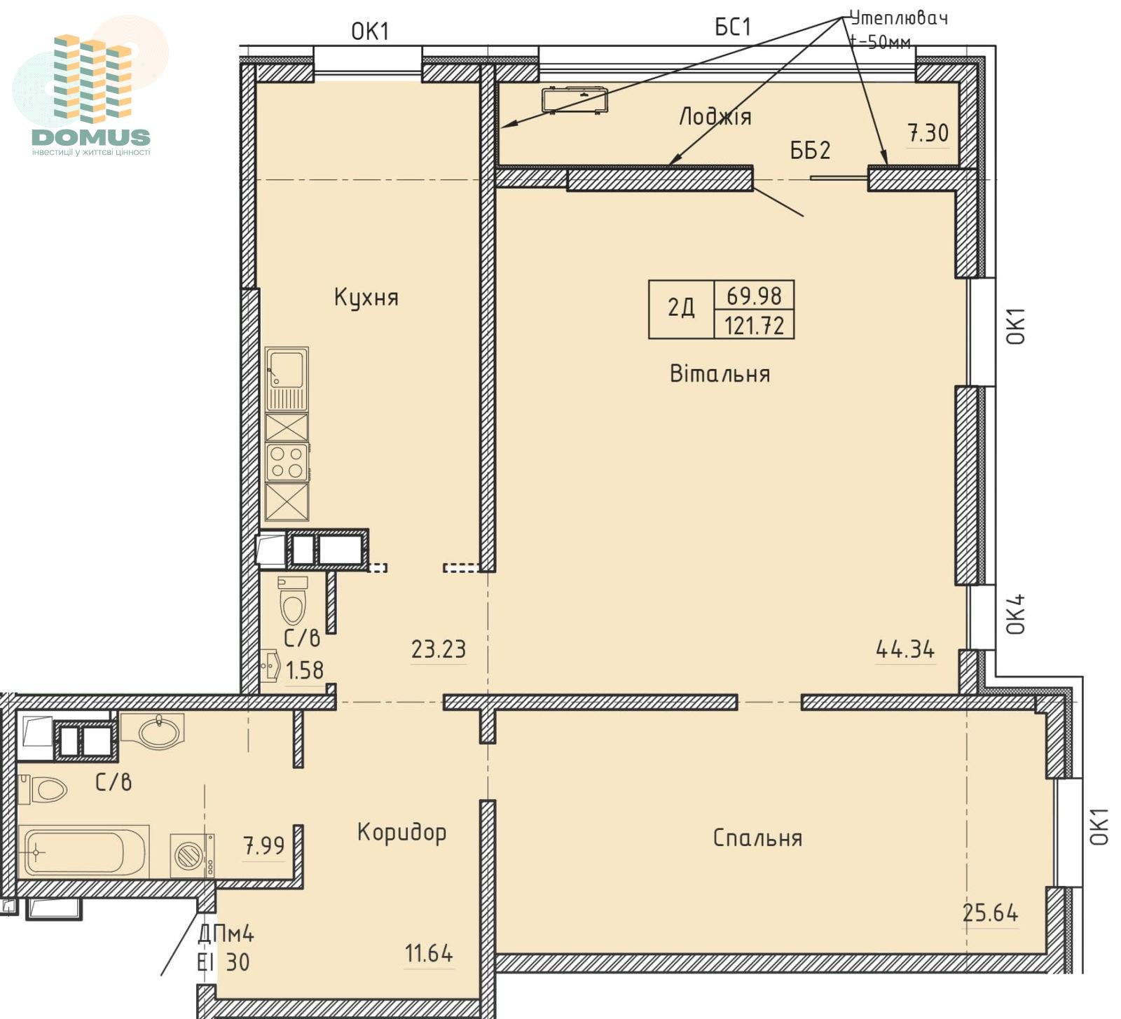
Общая площадь: 122 м2.
Кухня: 23.23 м2.
Вид на море и Французский бульвар.
Комплекс апартаментов Олимпийский расположен в курортной части г. Одесса. В шаговой доступности самый красивый дендропарк — Парк Победы.
Близость к морю, хорошая инфраструктура, транспортная развязка.
Аркадия рядом, проспект Шевченко, Французский бульвар.
Звоните! Организую показ!
Узнайте первыми о самых выгодных предложениях недвижимости в Одессе!
Подпишитесь или позвоните на телеграмм
Domus - нерухомість Одеси

140 000 $ вартість об'єкта
1 148 $ ціна за м2
122 м2
3 кімнат
10 Поверх
30 К-ть поверхів

Параметри

центральна Вода:
центральне Опалення:

Додатково

Дата оновлення інформації: 22.12.2025 16:53;