SF-3-252-929

Продам 2-кімнатну квартиру, ЖК Manhattan

Розташування: Одеса, Київський район, Чубаївка, Філатова Академіка вул.
2 Кімнат
61 м2
17/22 17
Ціна
57 000 $

Інформація

Продам 2 комн ЖК Манхеттен! Толбухина/ Филатова! Дом сдан!
Manhattan, Манхэттен!
17 этаж
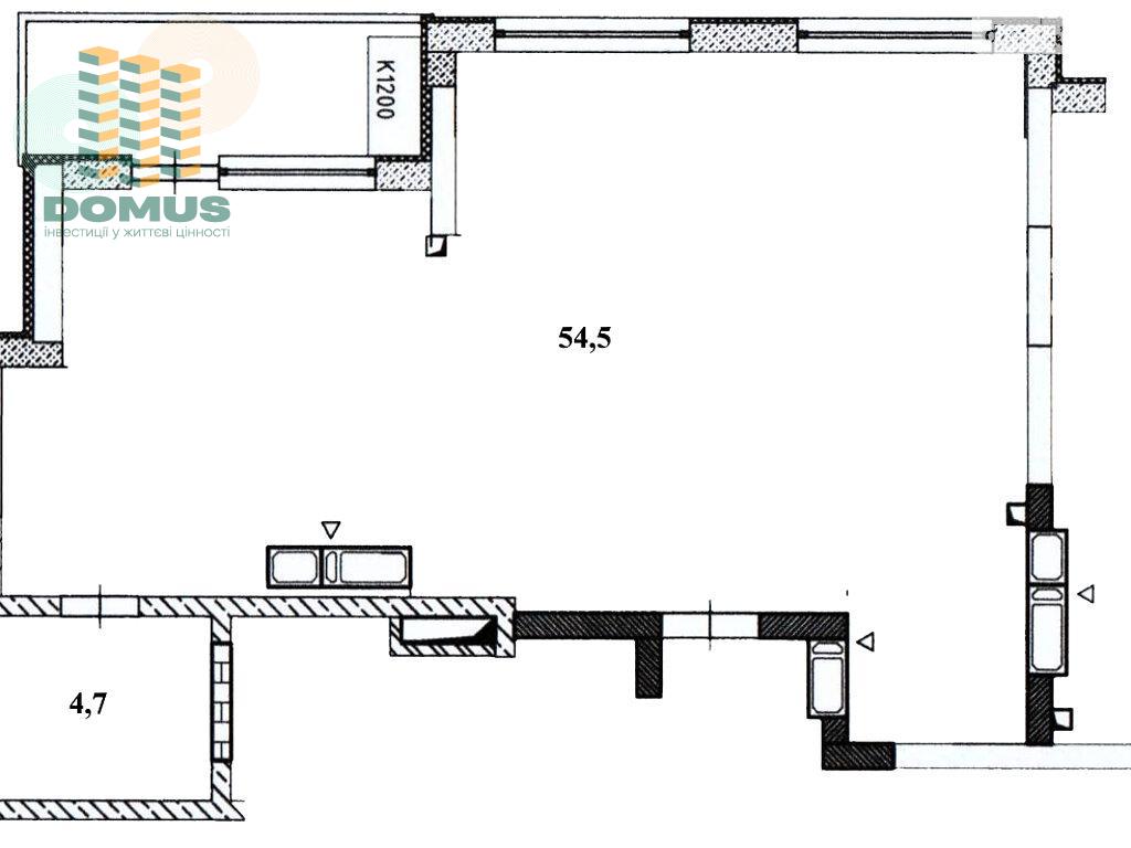
Общая площадь: 60,8 м2
Квартира с балконом, гардеробной и двумя выходами воды / стоками канализации, что значительно расширяет возможности произвольной планировки. В доме есть автономное отопление, 3 лифта, генератор на коммуникации. Без ремонта, состояние от застройщика со стяжкой и установленным счетчиком тепла. Также в стоимость входит дизайн-проект под студию.
Балкон + два больших окна выходят на восток с видом на центр Одессы, Аркадию и море на горизонте.
Одно панорамное окно на север.
Есть пожарная сигнализация, видеонаблюдение, охрана, консьерж и много другое.
На этаж поднимается пассажирский и грузовой лифт.
Дом расположен в одном из лучших и удобных для жизни районов города.
Большая и удобная транспортная развязка. Остановки общественного транспорта, откуда можно доехать в любой район города.
В радиусе 200 метров находится парк "Горького", детский сад, школа, полиция, поликлиника, магазины Сильпо" и "Таврия", аптеки, почтовое отделение "Новая почта", торговая сеть "Розетка" и многое другое.
Звоните! Организую показ!

Узнайте первыми о самых выгодных предложениях недвижимости в Одессе!
Подпишитесь или позвоните на телеграмм
Domus - нерухомість Одеси

57 000 $ вартість об'єкта
938 $ ціна за м2
60.80 м2
2 кімнат
17 Поверх
22 К-ть поверхів

Параметри

центральна Вода:
центральне Опалення:
керамзітобетон Матеріал стін:

Додатково

Дата оновлення інформації: 02.04.2026 16:48;