SF-3-261-974

Продам 2-кімнатну квартиру, ЖК «Простір на Дачній»

Розташування: Одеса, Київський район, Великий Фонтан, Дачна вул.
2 Кімнат
47 м2
5/6 поверх
Ціна
61 500 $

Інформація

Продам квартиру в ЖК Пространство на Дачной
5 этаж
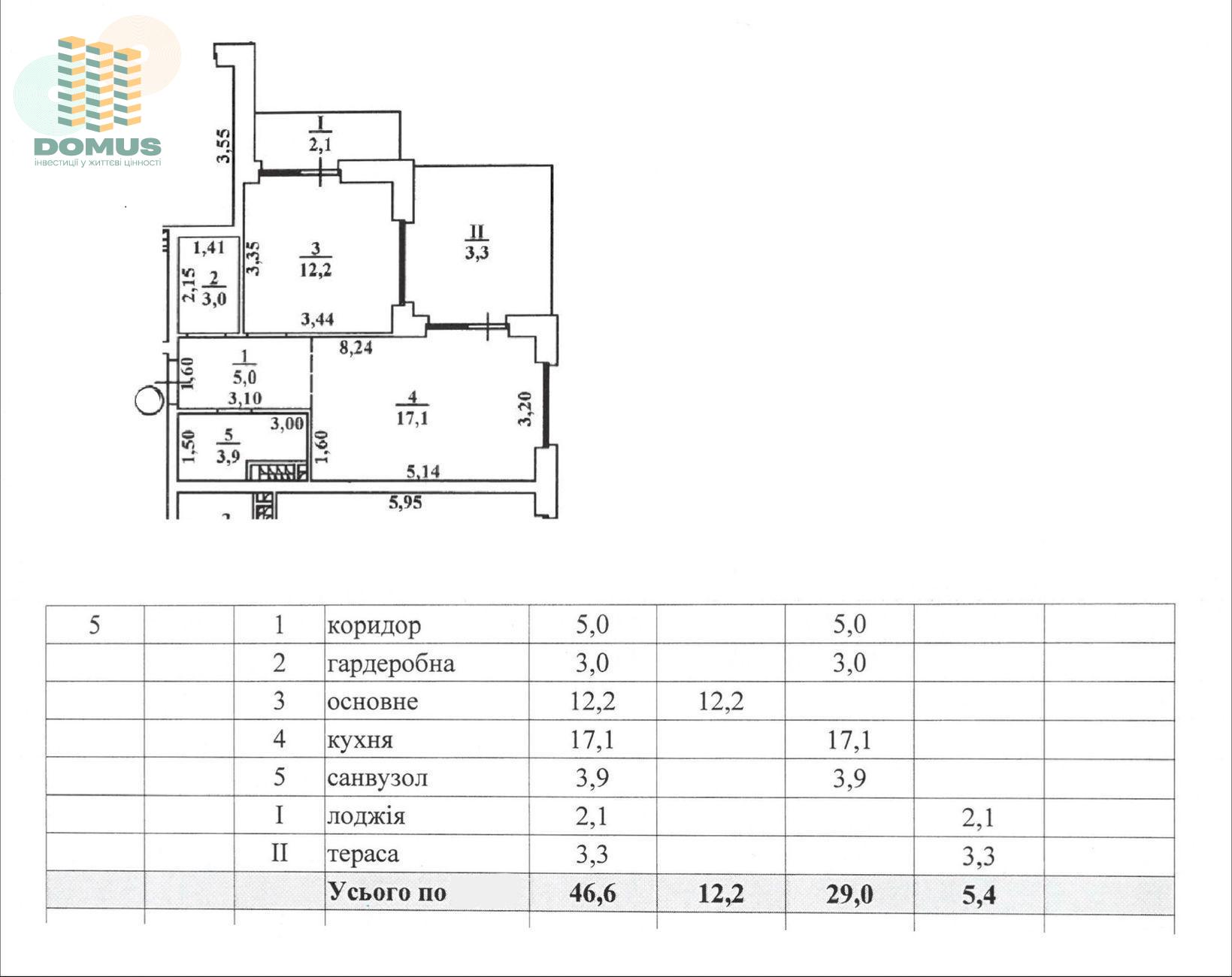
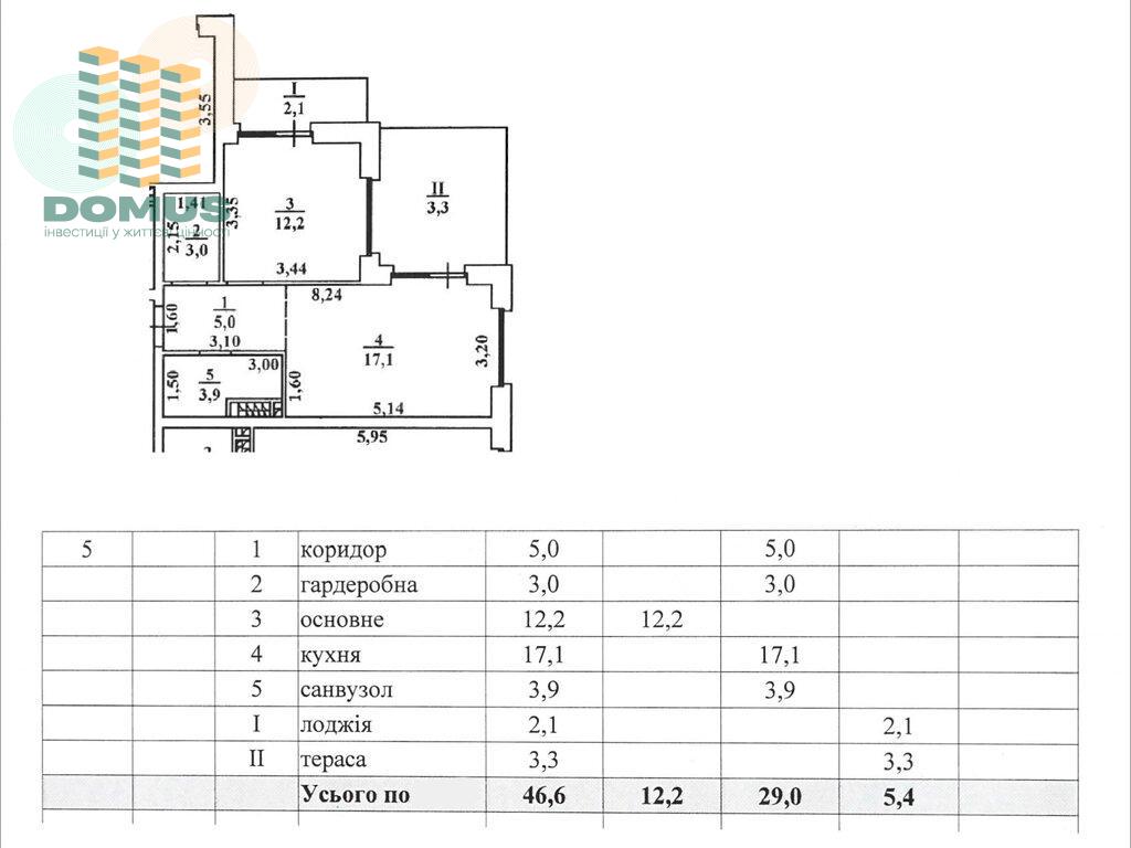
Общая площадь: 46,6 м2
Есть паркинг с лифтом.
Море в пешей доступности.
Всё необходимое для полноценной жизни находится на расстоянии 5-10 минут ходьбы.
Это и зеленая зона 13ой станции Большого Фонтана, и пляж Курортный, а также детский сад и школа.
Рядом с домом остановка общественного транспорта.
Звоните!
Узнайте первыми о самых выгодных предложениях недвижимости в Одессе!
Подпишитесь или позвоните на телеграмм
Domus - нерухомість Одеси

61 500 $ вартість об'єкта
1 320 $ ціна за м2
46.60 м2
2 кімнат
5 Поверх
6 К-ть поверхів

Параметри

центральна Вода:
автономне Опалення:

Додатково

Дата оновлення інформації: 06.01.2026 11:57;