SF-3-279-369

Продам 3-кімнатну квартиру, ЖК «Бельєтаж»

Розташування: Одеса, Приморський район, Центр, Леонтовича вул.
3 Кімнат
140 м2
16/16 16
Ціна
470 000 $

Інформація

Продам двухуровневую квартиру в ЖК Бельэтаж
16 этаж
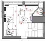
Общая площадь: 140 м2
На первом этаже кухня , гостинная , балкон, спальня, два санузла, две гардеробные ; на втором этаже гостиная с террасой и санузлом. В квартире выполнен 70% ремонта : полы, стены, потолки, электрика , сантехника частично уже установлена. Есть теплые полы , мраморные подоконники.

Узнайте первыми о самых выгодных предложениях недвижимости в Одессе!
Подпишитесь или позвоните на телеграмм
Domus - нерухомість Одеси

470 000 $ вартість об'єкта
3 357 $ ціна за м2
140 м2
3 кімнат
16 Поверх
16 К-ть поверхів

Параметри

центральна Вода:
центральне Опалення:

Додатково

Дата оновлення інформації: 17.02.2026 17:26;