SF-3-289-817

Продам 1-кімнатну квартиру

Розташування: Одеса, Приморський район, Центр, Сєченова пров.
1 Кімнат
36 м2
6/6 6
Ціна
55 700 $

Інформація

Продам квартиру в ЖК Різдвяний
6 поверх
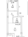
Загальна площа: 35,7 м2
територія, що охороняється. Поруч університети, пішки Новий ринок, бювет, сади та школи.
Дізнайтесь першими про найвигідніші пропозиції нерухомості в Одесі!
Підпишіться або зателефонуйте на телеграм
Domus - нерухомість в Одесі.

55 700 $ вартість об'єкта
1 560 $ ціна за м2
35.70 м2
1 кімнат
6 Поверх
6 К-ть поверхів

Параметри

центральна Вода:
центральне Опалення:

Додатково

Дата оновлення інформації: 11.03.2026 09:42;