SF-3-292-386

Продам 2-кімнатну квартиру, ЖК «Армійський»

Розташування: Одеса, Приморський район, Парк Перемоги, Незалежності вул.
2 Кімнат
91 м2
13/17 13
Ціна
155 000 $

Інформація

Продам квартиру в ЖК Армійський
13 поверх
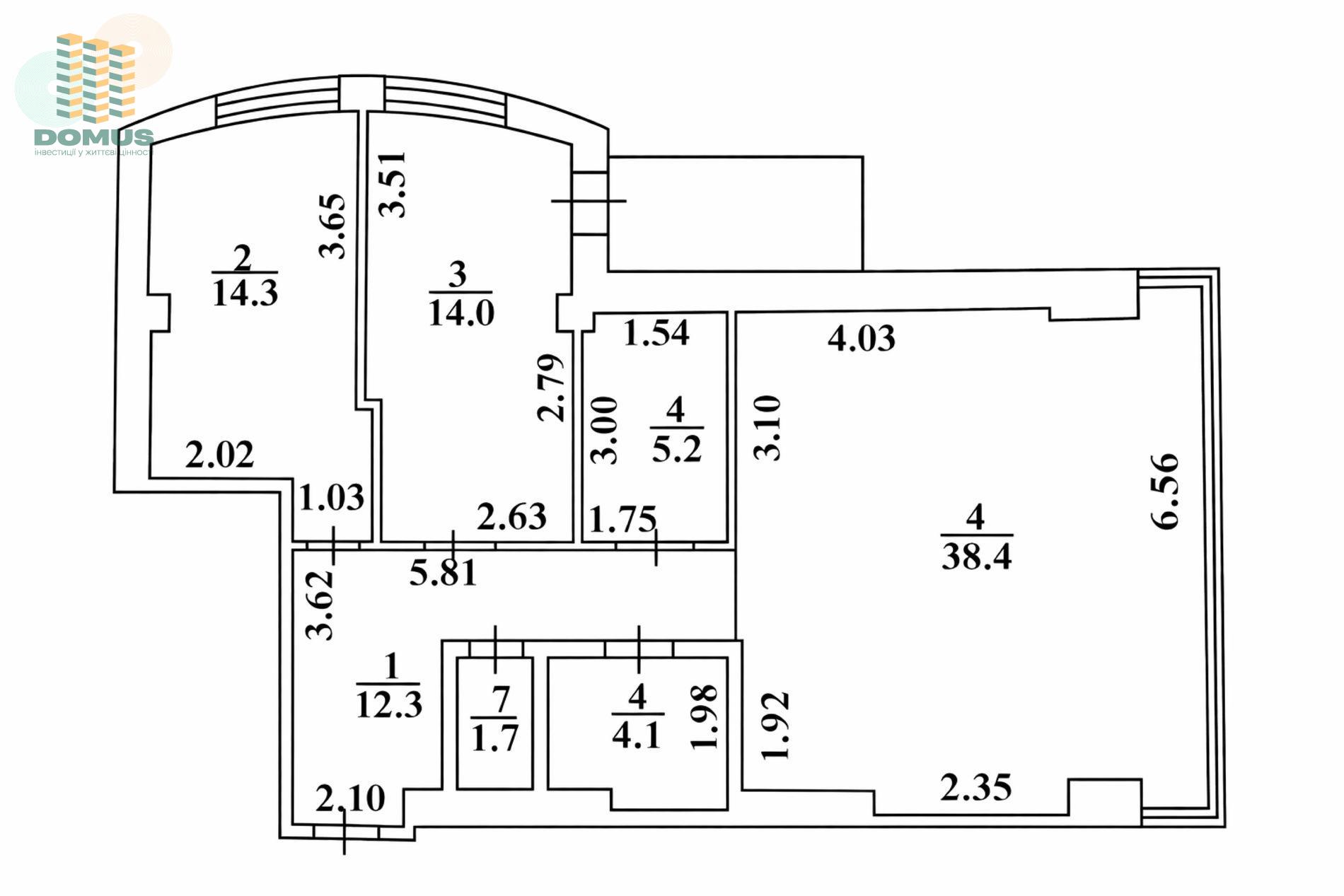
Загальна площа: 91,4 м2
Продумане та зручне планування:
дві окремі спальні
велика кухня-вітальня 39 м²
окремий санвузол
простора вбиральня
балкон з обладнаним робочим місцем

Квартира двостороння, дуже світла, з сучасним якісним ремонтом.

Повністю укомплектована меблями та технікою відомих брендів — можна одразу заїхати та жити.

підігрів підлоги в холі та санвузлі
будинок з червоної цегли
закрита територія з охороною 24/7
двір без машин
відеоспостереження
підземний паркінг
гостьова парковка
автономне енергопостачання та генератор

Поряд із будинком:

парк Перемоги з озером
школа-ліцей «Європейський»
супермаркет АТБ
дитячі садки
салони краси
магазини та кафе

Розташування
20 хвилин пішки до моря та Траси здоров'я
3-5 хвилин на машині до Аркадії
3-5 хвилин до центру міста
Ідеальний варіант для комфортного життя у Львові.
Дізнайтесь першими про найвигідніші пропозиції нерухомості в Одесі!
Підпишіться або зателефонуйте на телеграм
Domus - нерухомість в Одесі.

155 000 $ вартість об'єкта
1 696 $ ціна за м2
91.40 м2
2 кімнат
13 Поверх
17 К-ть поверхів

Параметри

центральна Вода:
автономне Опалення:

Додатково

Дата оновлення інформації: 17.03.2026 09:35;