SF-3-299-833

Продам 1-кімнатну квартиру, ЖК Manhattan

Розташування: Одеса, Київський район, Середній Фонтан, Філатова Академіка вул.
1 Кімнат
60 м2
8/22 8
Ціна
70 000 $

Інформація

Продам квартиру в ЖК Манхеттен
8 поверх
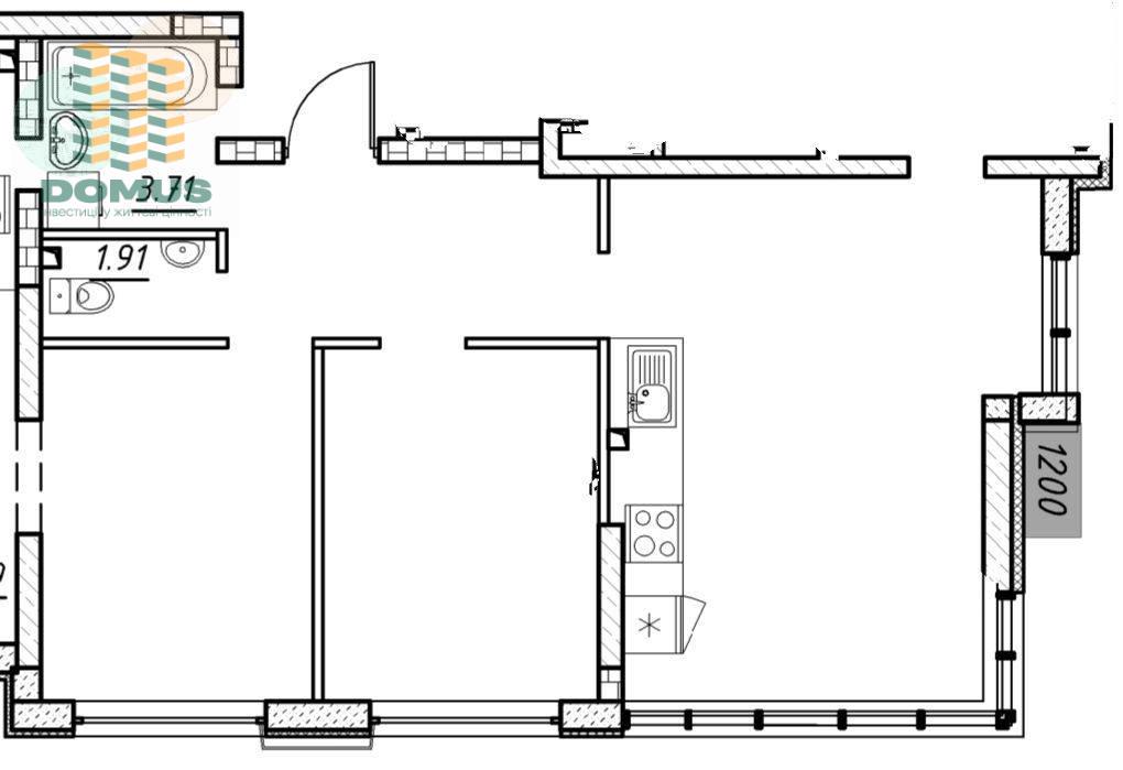
Загальна площа: 60 м2
Вільне планування. 4 панорамні вікна (можна розпланувати в 2х-3х кімн. квартиру. Виконано розведення опалення, залито чистову стяжку, встановлені радіатори.
Інфраструктура: супермаркети та торгові центри, школи, дитячі садки, медичні заклади, ресторани та кафе, п'ять хвилин їзди до моря.

Переваги будинку:
До центру 15 хвилин.
До моря 10 хв.
Поруч Парк Горького та до ТРЦ CityCenter 2 хвилини.
Поруч 3 школи, поліклініки, супермаркети.
Елітний новобуд, консьєрж, охорона, відеоспостереження.

Комплекс розташований за адресою вулиця Філатова Академіка, 2.

Дізнайтесь першими про найвигідніші пропозиції нерухомості в Одесі!
Підпишіться або зателефонуйте на телеграм
Domus - нерухомість в Одесі.

70 000 $ вартість об'єкта
1 167 $ ціна за м2
60 м2
1 кімнат
8 Поверх
22 К-ть поверхів

Параметри

центральна Вода:
центральне Опалення:

Додатково

Дата оновлення інформації: 02.04.2026 16:35;