SF-3-299-840

Продам 1-кімнатну квартиру, ЖК Manhattan

Розташування: Одеса, Київський район, Середній Фонтан, Філатова Академіка вул.
1 Кімнат
44 м2
11/22 11
Ціна
63 000 $

Інформація

Продам квартиру в ЖК Манхеттен
11 поверх
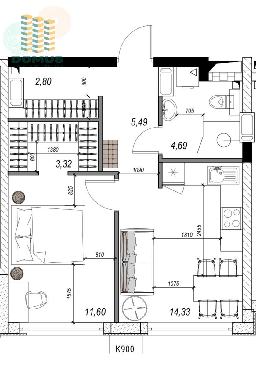
Загальна площа: 43,9 м2
Встановлено перегородки, виконано розведення опалення, залито чистову стяжку, стіни шпакльовані та оштукатурені, встановлений теплолічильник
Інфраструктура: супермаркети та торгові центри, школи, дитячі садки, медичні заклади, ресторани та кафе, п'ять хвилин їзди до моря.

Переваги будинку:
До центру 15 хвилин.
До моря 10 хв.
Поруч Парк Горького та до ТРЦ CityCenter 2 хвилини.
Поруч 3 школи, поліклініки, супермаркети.
Елітний новобуд, консьєрж, охорона, відеоспостереження.

Комплекс розташований за адресою вулиця Філатова Академіка, 2.

Дізнайтесь першими про найвигідніші пропозиції нерухомості в Одесі!
Підпишіться або зателефонуйте на телеграм

63 000 $ вартість об'єкта
1 435 $ ціна за м2
43.90 м2
1 кімнат
11 Поверх
22 К-ть поверхів

Параметри

центральна Вода:
центральне Опалення:

Додатково

Дата оновлення інформації: 02.04.2026 16:43;